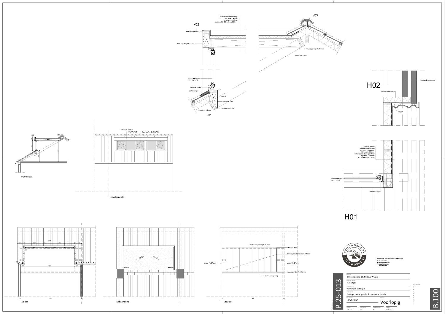
Dakkapel Waalre